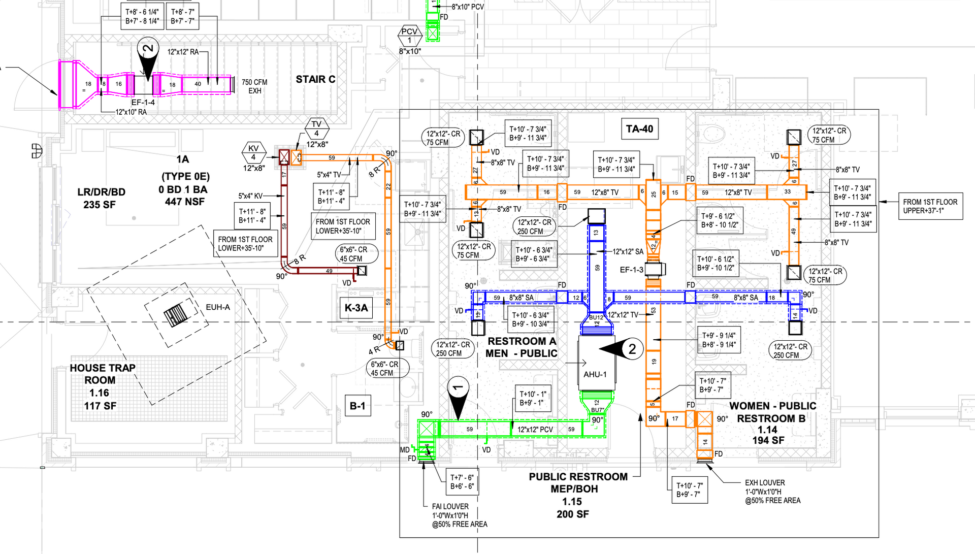
HVAC Shop Drawings
Detailed shop drawings minimize material waste by providing precise instructions on HVAC component quantities and dimensions, reducing costs for procurement and storage. Accurate drawings also improve construction efficiency by eliminating guesswork during installation, resulting in reduced labor expenses.
Let's talk about your next project








